314 Main St, Plaistow, NH 03865, USA

314 Main St
Plaistow, NH 03865

Scroll to Content

Details

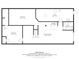
Your Year‑Round Oasis Awaits! Enjoy resort‑style living every day in this stunning single‑level home featuring a spacious indoor pool for year‑round swimming and entertaining. The open‑concept layout offers convenience and comfort, while the finished lower level provides flexible space with bedroom, bath, bar, and private entrance, ideal for guest quarters or an in‑law suite. Set back on 4 wooded acres, the property includes fruit trees, walking trails, and abundant privacy. This is more than a home, it’s a lifestyle!
Your private oasis awaits!

  • $895,000
  • 4 Bedrooms
  • 4 Bathrooms
  • 2,882 Sq/ft
  • Lot 4 Acres
  • Built in 1985
  • MLS: 5071114

Images

Videos

Floor Plans

314 Main St, Plaistow, NH 03865, USA