2 Sholtz Terrace, Salisbury, MA 01952
Toggle Navigation
Images
Floor Plans
Map
2 Sholtz Terrace
Salisbury, MA 01952
Scroll to Content
Images
Slideshow
Photo Grid
Hide
Previous
Next
Show more
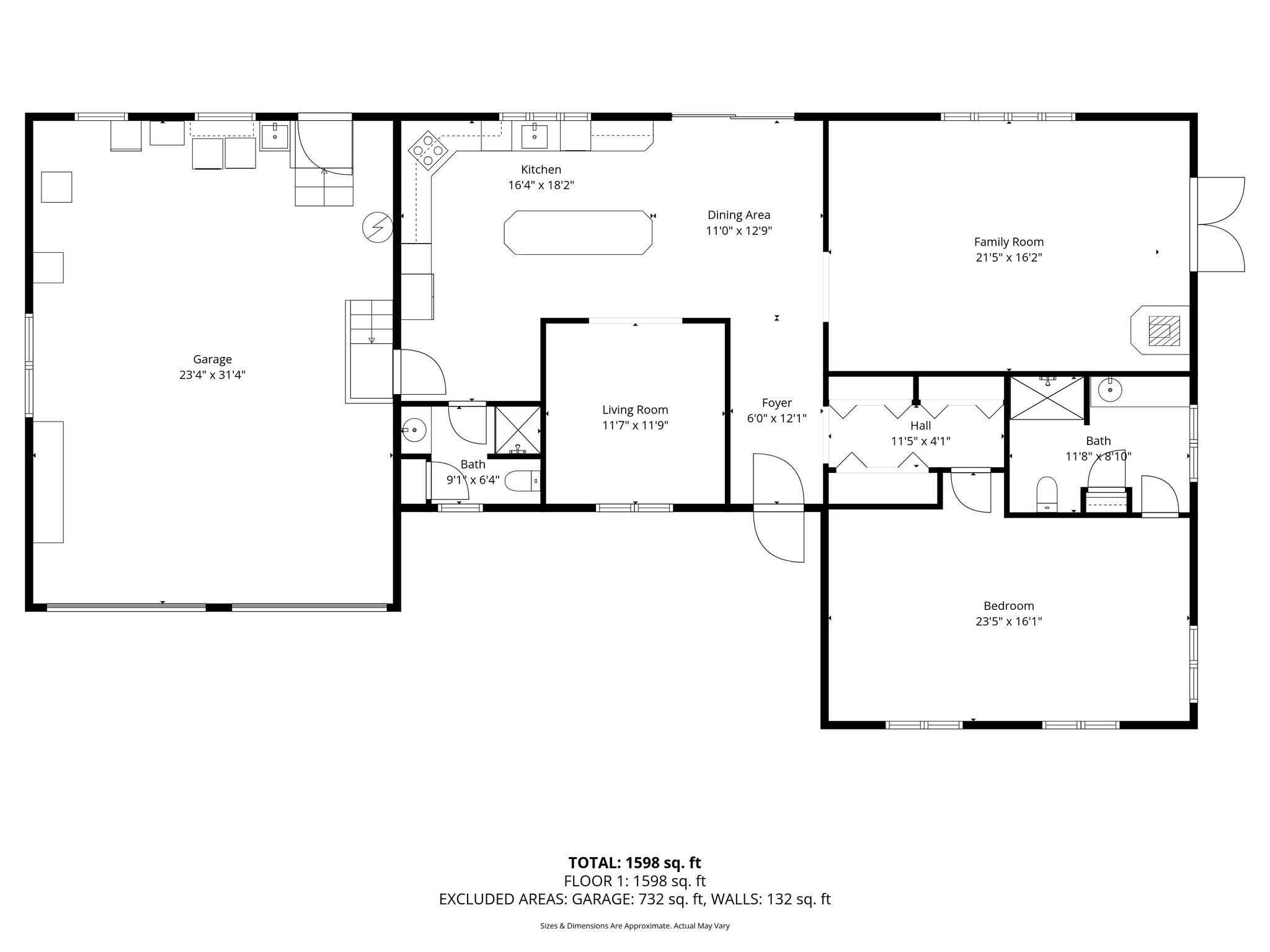
Floor Plans
Slideshow
Photo Grid
Hide
Previous
Next